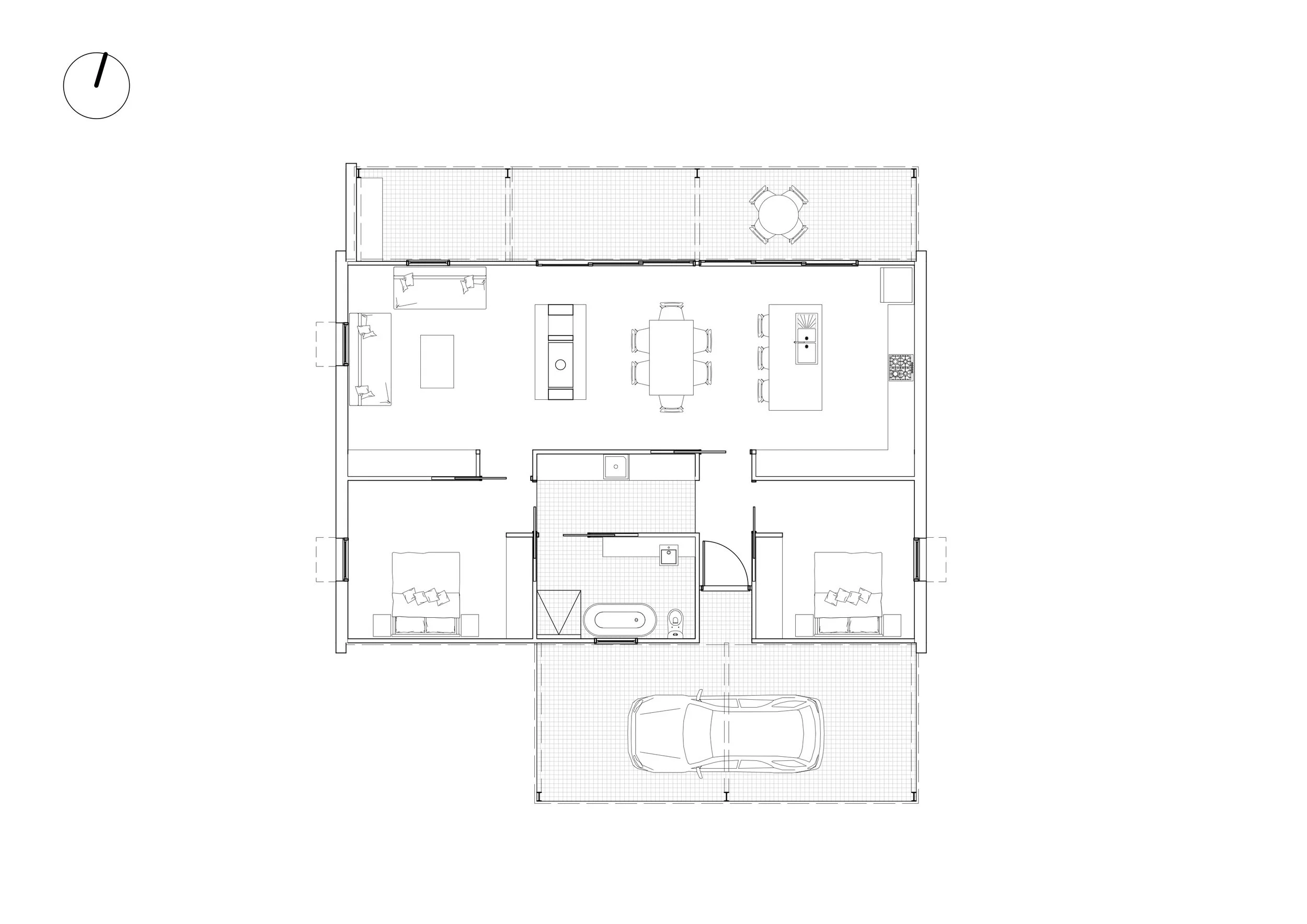
QUArTER COTTAGE

Quarter Cottage was developed as a self contained residence for short term farm stay accomodation on a working property.

The site surrounded by bushland required a robust structure of concrete, brick and steel to withstand the threat of bushfire.

The simple semi-rustic facade is inspired by the early mining workers cottages which were a part of the first industry in the area. The brick parapet “bookend” walls reflect the silhouette of an early workers cottage that typically featured a central entry door with two windows either side.

YEAR - 2021

STAGE - UNBUILT CONCEPT

Previous
Previous

Maybrook - 1888

Next
Next

Wilson House